Детали проекта
Кондитерская фабрика «Ферреро»
Вид строительства: Реконструкция
Адрес объекта: Владимирская область, Собинский район, с. Ворша
Описание объекта: Кондитерская фабрика «Ферреро» – это современный производственно-логистический комплекс общей площадью 80 000 м², где использованы лучшие достижения компании в области организации производства.
Общая площадь объекта: 110 кв.м
Цель работ
Разработать проект помещения для персонала, проект модернизации металлоконструкций, проект приямка под грузовые весы.
Результат работ
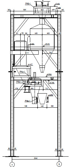
Проект помещения для персонала. Проектируемое помещение для персонала службы главного энергетика (электромастерская) располагается в объеме существующего помещения для разгрузки сырья (высота помещения 8,37 м до покрытия). Проектом предусматривается устройство перекрытия на отм. +4,225 м из металлического листа по металлическим балкам. Существующий каркас – железобетонные колонны, для устройства перекрытия проектируются металлические колонны.
Проектируемое помещение имеет связь – дверной проем – с соседним помещением ремонтной мастерской, а также запроектирован эвакуационный выход из помещения по наружной металлической лестнице. В помещении запроектировано автоматическое пожаротушение.
Проектируемое помещение прямоугольной формы с размерами в плане 12,83х8,64м. Существующие ограждающие наружные стены из сэндвич-панелей, толщиной 120 мм, внутренние из сэндвич-панелей, толщиной 80мм. Покрытие профлист-утеплитель-мембрана.
Для естественной инсоляции помещения проектом предусматривается устройство оконного проема в существующей наружной стене по типу существующих окон в здании.
Проект модернизации металлоконструкций. Перед началом разработки проекта выли выполнены расчеты новой металлической конструкции под новое оборудование. По результатам расчета сделаны выводы о достаточности выбранных сечений конструкции и разработан проект.
Проект приямка под грузовые весы. Весы автомобильные фундаментные врезные грузоподъемностью 60 т представляют собой грузоподъемную платформу. Они располагаются на одном уровне с проезжей частью дороги. Весы расположены в приямке глубиной 1,5 м. Приямок монолитный железобетонный размерами 19,01 х 3,8 м. Основанием приямка является свайный ростверк, сваи длиной 9 м.


















